Dezbaterea publică, on-line. Ansamblul imobiliar Greenfield Constanţa, ridicat de Impact Developer&Contractor SA, în atenţia autorităţii de mediu
Dezbaterea publică, on-line. Ansamblul imobiliar Greenfield Constanţa, ridicat de Impact Developer&Contractor
22 May, 2020 00:00
ZIUA de Constanta
3251
Marime text
3251
Marime text
- Impact Developer&Contractor SA a solicitat acord de mediu pentu construirea unui ansamblu rezidenţial - Greenfield Constanța
- Investiţia va fi realizată în Palazu Mare, parcela 267.
- Cu sediul social în Bucureşti, Impact Developer&Contractor este controlată de Lista acţionari
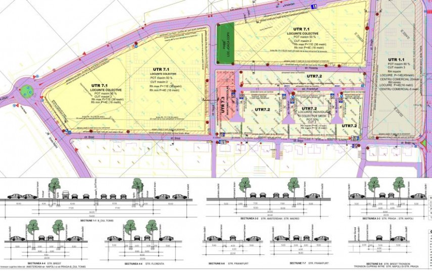
Firma Impact Developer&Contractor SA a depus la Agenția pentru Protecţia Mediului Constanța proiectul: „Construire ansamblu locuințe colective lot 1- Greenfield Constanța blocuri tip: XA-P+11e+Etaj Tehnic, XB-P+8e+Etaj Tehnic, XC-P+8e+Etaj Tehnic, M1-P+11e+Etaj Tehnic, M2-P+11e+Etaj Tehnic, parcaj-S+P+4e”, în vederea apporbării raportului privind impactul asupra mediului. Investiţia imobiliară va fi amplasată în municipiul Constanța, Palazu Mare, parcela 267.
Tipul deciziei posibile luate de Agenția pentru Protectia Mediului Constanța poate fi emiterea acordului de mediu sau respingerea solicitării de emitere a acordului de mediu. Dată fiind starea de alertă declarată la nivel național, dezbaterea publică a raportului privind impactul asupra mediului se va susține on-line.
În acest sens, publicul interesat poate transmite în scris comentarii, opinii, observaţii privind proectul până la data de 22.06.2020.
Mai multe acte de urbanism, emise de Municipalitate
Primăria Constanţa a emis pe data de 29 ianuarie 2020 un act de urbanism pentru societatea Impact Developer & Contractor SA, pentru construirea ansamblului imobiliar Greenfield Constanţa.
Este vorba despre certificatul de urbanism nr. 508 - „Construire ansamblu locuinţe colective lot 1 - Greenfield Constanţa blocuri tip: XA - P+11e+etaj tehnic; XB - P+8e+etaj tehnic; XC - P+8e+etaj tehnic; M1- P+11e+etaj tehnic; M2 - P+11e+etaj tehnic; parcaj - S+P+4e“. De asemenea, Impact Developer & Contractor SA a obţinut, pe data de 4 decembrie 2019, un act de urbanism de la Primăria Constanţa. La rândul său, certificatul de urbanism nr. 4526 constă în „Alipire imobil parcela 267 / 1 / 1 / 1 + parcela 267 / 2 / 1 alipire imobile număr cadastral nr. 222444, în suprafaţă de 126 mp, și număr cadastral nr. 25042, în suprafaţă de 134 mp. După alipire va rezulta un imobil cu suprafaţa de 260 mp“. Terenurile se află în zona Palazu Mare, parcela 267/2. Mai mult, Impact Developer & Contractor SA a obţinut pe data de 4 noiembrie 2019 de la Primăria Constanţa certificatul de urbanism nr. 4068, care constă în „Alipire patru imobile: lot ZF 13 - 382 mp, lot ZF 14 - 391 mp, lot ZF 15 – 390 mp, lot ZF 16 – 339 mp. Suprafaţa totală este de 1.502 mp“. Loturile vizate de certificatul de urbanism sunt următoarele: strada Brest (DE 279, DE 270) nr. Lot ZF 13, Lot ZF 14, Lot ZF 15, Lot ZF 16. Pe data de 26 noiembrie 2018, Impact Developer & Contractor SA a obţinut de la Primăria Municipiului Constanţa mai multe certificate de urbanism, în vederea ridicării unor imobile cu destinaţia de locuinţe. Este vorba despre ansamblul rezidenţial Greenfield, care va fi ridicat în nordul municipiului Constanţa, zona cartier Tomis Plus - Boreal.
De altfel, societatea a solicitat Agenţiei pentru Protecţia Mediului Constanţa, în luna martie 2018, aviz de mediu pentru proiectul „Elaborare Plan Urbanistic Zonal (PUZ) modificare reglementări urbanistice pentru construire ansamblu rezidenţial Greenfield“.
Amplasamentul care generează studiul PUZ este situat în nordul municipiului Constanţa, zona cartier Tomis Plus - Boreal.
Date oficiale despre Impact Developer & Contractor SA
Înfiinţată în anul 2018, firma are sediul social în Bucureşti. Firma provine din schimbare sediu în alt judeţ. Capitalul social subscris, de 277.866.574 lei, este compus din 277.866.574 de acţiuni nominative. Valoarea unei acţiuni este de 1 leu. Compania este controlată de lista acţionari. Persoane împuternicite ale firmei care se ocupă de dezvoltare (promovare) imobiliară sunt: Urdă Iuliana-Mihaela - preşedinte consiliu de administraţie, Beze Laviniu-Dumitru - membru în CA, Pandele Daniel – membru CA, Scarlat Ruxandra-Alina – membru CA, Vasile Gabriel – membru CA, Oşlobeanu Bogdan-Ionuţ - director general, Kacic Giani Iulian - director financiar. Cenzor este societatea Delloite Audit, reprezentat prin Mirea Ioana-Alina. Punctele de lucru ale companiei sunt: Bucureşti Sectorul 1, Drumul Pădurea Neagră nr. 2A; Bucureşti, Sectorul 1, şoseaua Bucureşti-Ploieşti nr. 172-176, spaţiu de birouri; Bucureşti, Sectorul 1, strada Drumul Pădurea Neagră nr. 56, corp A şi B; oraş Voluntari, şoseaua Pipera Tunari nr. 4C, Centrul de Afaceri Construdava. În anul fiscal 2014, Impact Developer & Contractor SA a avut 20 de salariaţi, a declarat o cifră de afaceri de 25.676.812 lei şi un profit de 4.226.395 de lei. De asemenea, în anul 2015, firma cu 43 de salariaţi a înregistrat o cifră de afaceri de 110.823.060 de lei şi un profit de zero lei. Situaţia financiară pe anul 2016 arată astfel: 55 de salariaţi, o cifră de afaceri de 148.746.857 de lei şi un profit de 29.610.138 de lei. Cu 58 de salariaţi în anul 2017, Impact Developer & Contractor SA a raportat o cifră de afaceri de 117.795.064 lei şi un profit de 62.114.015 lei.
Citeşte şi:
Undă verde de la Primăria Constanţa Ansamblul rezidenţial Greenfield, ridicat de Impact Developer în Palazu Mare
PUZ-ul societăţii Impact Developer & Contractor SA pentru construirea ansamblului rezidenţial Greenfield, la mâna constănţenilor
Un nou act de urbanism de la Primăria Constanţa pentru Impact Developer & Contractor SA
Urmareste-ne pe Grupul de Whatsapp
Comentarii
Fondul Documentar Dobrogea de ieri și de azi


