PUZ-ul societăţii Impact Developer & Contractor SA pentru construirea ansamblului rezidenţial Greenfield, la mâna constănţenilor
PUZ-ul societăţii Impact Developer & Contractor SA pentru construirea ansamblului rezidenţial Greenfield, la
05 Apr, 2019 00:00
ZIUA de Constanta
5446
Marime text
5446
Marime text
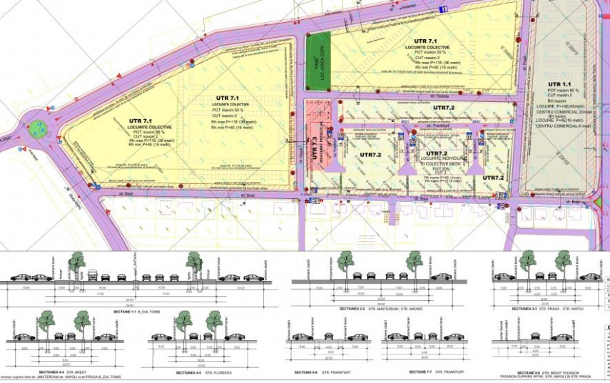
Reamintim că, pe data de 26 noiembrie 2018, Impact Developer & Contractor SA a obţinut de la Primăria Municipiului Constanţamai multe certificate de urbanism, în vederea ridicării unor imobile cu destinaţia de locuinţe. Este vorba despre ansamblul rezidenţial Greenfield, care va fi ridicat în nordul municipiului Constanţa, zona cartier Tomis Plus - Boreal. De altfel, societatea a solicitat Agenţiei pentru Protecţia Mediului Constanţa, în luna martie 2018, aviz de mediu pentru proiectul „Elaborare Plan Urbanistic Zonal (PUZ) modificare reglementări urbanistice pentru construire ansamblu rezidenţial Greenfield“. Amplasamentul care generează studiul PUZ este situat în nordul municipiului Constanţa, zona cartier Tomis Plus - Boreal. Teritoriul ce urmează a fi studiat prin PUZ este delimitat de bulevardul Tomis, strada Amsterdam, strada Madrid şi strada Brest. Imobilele identificate aparţin SC Impact Developer & Contractor SA, conform actelor de atestare a proprietăţii - contract de vânzare nr. 2959/12.10.2016, contract de vânzare nr. 2960/12.10.2016 - şi înscrisurilor din extrasul de carte funciară.
Date oficiale despre Impact Developer & Contractor SA
Înfiinţată în anul 2018, firma are sediul social în Bucureşti. Firma provine din schimbare sediu în alt judeţ. Capitalul social subscris de 277.866.574 lei este compus din 277.866.574 de acţiuni nominative. Valoarea unei acţiuni este de 1 leu. Compania este controlată de lista acţionari. Persoane împuternicite ale firmei care se ocupă de dezvoltare (promovare) imobiliară sunt: Urdă Iuliana-Mihaela - preşedinte consiliu de administraţie, Beze Laviniu-Dumitru - membru în CA, Pandele Daniel – membru CA, Scarlat Ruxandra-Alina – membru CA, Vasile Gabriel – membru CA, Oşlobeanu Bogdan-Ionuţ - director general, Kacic Giani Iulian - director financiar. Cenzori este societatea Delloite Audit, reprezentat prin Mirea Ioana-Alina. De asemenea, punctele de lucru al companiei sunt: Bucureşti Sectorul 1, Drumul Pădurea Neagră nr. 2A; Bucureşti, Sectorul 1, şoseaua Bucureşti-Ploieşti nr. 172-176, spaţiu de birouri; Bucureşti, Sectorul 1, strada Drumul Pădurea Neagră nr. 56, corp A şi B; oraş Voluntari, şoseaua Pipera Tunari nr. 4C, Centrul de Afaceri Construdava.
În anul fiscal 2014, Impact Developer & Contractor SA a avut 20 de salariaţi, a declarat o cifră de afaceri de 25.676.812 lei şi un profit de 4.226.395 de lei. De asemenea, în anul 2015, firma cu 43 de salariaţi a înregistrat o cifră de afaceri de 110.823.060 de lei şi un profit de zero lei. Situaţia financiară pe anul 2016 arată astfel: 55 de salariaţi, o cifră de afaceri de 148.746.857 de lei şi un profit de 29.610.138 de lei.
Cu 58 de salariaţi în anul 2017, Impact Developer & Contractor SA a raportat o cifră de afaceri de 117.795.064 lei şi un profit de 62.114.015 lei.
Citeşte şi:
Impact Developer & Contractor SA, elaborare PUZ pentru construirea ansamblului rezidenţial Greenfield (document)
Impact Developer & Contractor SA continuă demersurile pentru un nou ansamblu rezidenţial în Constanţa. Detalii
Urmareste-ne pe Grupul de Whatsapp
Comentarii
Fondul Documentar Dobrogea de ieri și de azi


