Investiţii pe strada Eliberării Doi constănţeni vor să ridice un bloc de şapte etaje (document+galerie foto)
Investiţii pe strada Eliberării: Doi constănţeni vor să ridice un bloc de şapte etaje (document+galerie foto)
17 Nov, 2016 00:00
ZIUA de Constanta
4571
Marime text
4571
Marime text
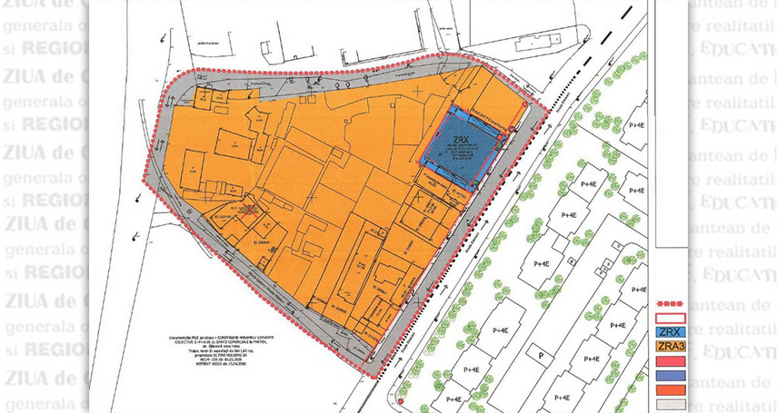
Comisia tehnică de urbanism şi amenajarea teritoriului, constituită în baza HCL nr. 283/2016, se va întruni în data de 21.11.2016, ora 13.00, la Primăria Constanţa. Precizăm că din comisie fac parte arhitecţii Mihai Isacov, Ignis Nejla Duvagi, Radu Cornescu, Sorin Mihai Vatamaniuc, dar şi directorul Muzeului de Artă, Doina Păuleanu, şi reprezentantul Direcţiei Judeţene pentru Cultură, arh. Laura Smaranda Tudosie. De asemenea, din aceeaşi comisie mai fac parte arh. Veronica Pribeagu, ing. Cornel Constantin Severin, şeful Serviciului de Urbanism al Primăriei, Mihai Radu Vânturache, precum şi viceprimarul Costin Răsăuţeanu.Unul dintre punctele cuprinse pe ordinea de zi are ca obiect solicitarea avizării Planului Urbanistic Zonal pentru zona delimitată de strada Eliberării şi alei de acces, iniţiatori - Costică Nicolae şi Dorina Bucur. Astfel, cele două persoane doresc să ridice un bloc de şapte etaje, într-o zonă în care regimul maxim de înălţime este de două etaje. Iniţiatorii PUZ-ului, Costică Nicolae şi Dorina Bucur, şi-au propus să modifice Planul Urbanistic Zonal al perimetrului delimitat de străzile Eliberării, Nicolae Milescu şi alei acces. Pe o parte a străzii Eliberării sunt blocuri cu parter şi patru etaje, iar pe cealaltă există numai imobile cu parter şi două nivele. Costică Nicolae şi Dorina Bucur intenţionează să ridice un bloc cu subsol, demisol, parter şi 6-7 etaje, cu o înălţime de maximum 28 de metri şi funcţiunea de locuinţe la etaj, birouri la parter.
Potrivit PUZ-ului, pentru zona ZRX, obiectiv care a generat PUZ-ul - strada Eliberării 47 bis, se propune un imobil cu regim de înălţime S/demisol + Parter+6 E-7E. La subsol şi demisol se propune amenajarea spaţiilor de parcare şi a spaţiilor tehnice, la parter - spaţii comerciale, locuri de joacă interioare pentru copii, instituţii financiar-bancare, birouri, cabinete medicale, iar de la etajul 1 până la etajul 7 - apartamente.
În secţiunea „Documente” puteţi consulta Regulamentul local de urbanism aferent acestui PUZ.
Urmareste-ne pe Grupul de Whatsapp
Comentarii
Fondul Documentar Dobrogea de ieri și de azi


