#ConstanțaEsteBine X-Ray la Cazinou? (fotoreportaj)
#ConstanțaEsteBine: X-Ray la Cazinou? (fotoreportaj)
31 Jul, 2020 01:05
ZIUA de Constanta
3532
Marime text
3532
Marime text

Mi-aduc aminte că acum vreo 20 de ani îmi plăcea să joc shooting-uri pe PC. În majoritatea lor, erau cu războaie de gherilă, cum vedem astăzi în Afganistan! Intrai, bine echipat, cu o mitralieră în mână, într-o clădire ruinată cu mai multe etaje și, după aproape fiecare colț sau pe scări, te aștepta o primejdie – unul sau mai mulți dușmani care voiau să te vadă mort. Câteodată, jocul te mai ajuta cu câte ceva, de exemplu – o pereche de ochelari X-RAY cu care puteai să vezi prin ziduri sau planșee. Dacă erai dibaci, terminai jocul neîmpușcat... Așa mă simt eu acum, parcă am o vedere cu X-RAY, când Cazinoul e golit, încet-încet, de planșeele dintre subsol și parter pentru a se înlocui sau consolida grinzile metalice corodate.
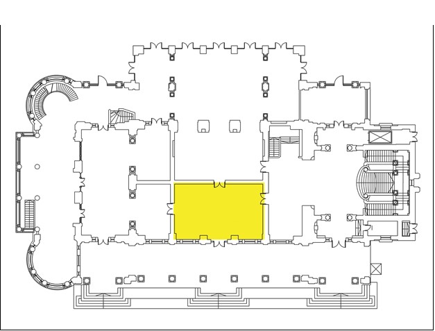
Cu portocaliu, spațiile fostului bar al Cazinoului
Printre primele planșee care s-au decopertat ca să se observe starea grinzilor metalice sunt cele ale fostului bar.





Se observă că aceste grinzi metalice sunt degradate din cauza coroziuni.

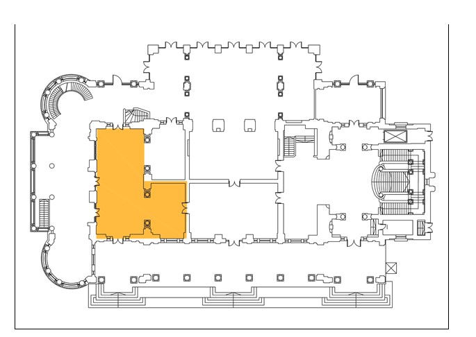
Cu galben, antecamera care face legătura, la parter, între holul principal și fostul bar.




Se vede că și aici sunt aceleași probleme, corodarea grinzilor metalice secundare, cele care stau pe grinzile principale ale lui Saligny. Acestea, care sunt similare celor de pe Podul de la Cernavoda, ca prin minune, sunt intacte. Și au cel puțin 110 ani!

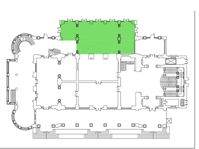
Cu verde, spațiile fostului restaurant dinspre mare.
Planșeele dintre subsol și parter din zona restaurantului dinspre mare au fost și ele decopertate de beton, rămânând grinzile secundare. Acestea nu sunt așa de corodate și vor fi incluse într-o rețea de fier-beton deasă, după care se va turna betonul. E soluția aleasă de experți pentru această zonă.



Interesantă și spectaculoasă însă, este imaginea parterului privită dinspre subsol. Aici intervine fabulația mea că parcă aș privi printre etaje cu ochelari X-RAY!

Aici se vede inclusiv plafonul foarte degradat al fostei săli de bar.


Grinzile metalice de sub antecamera fostului bar.
De aici încolo, urmează 5 imagini cu planșeele dezafectate din zona fostului restaurant dinspre mare.




În prezent se taie toate grinzile degradate care vor fi înlocuite cu grinzi identice ca dimensiuni, dar cu materiale durabile și impregnate cu o vopsea anticorosivă de ultimă generație și rezistentă la mediul salin.



Într-o ultimă imagine, revin în subsolul de sub fostul restaurant pentru a vă arăta cum unii stâlpi nu se continuau în jos, doar stau pe grinzile metalice. Cum e posibil? Explicația e simplă, nu sunt stâlpi principali de susținere, majoritatea sunt butaforie!

Urmareste-ne pe Grupul de Whatsapp
Comentarii
Fondul Documentar Dobrogea de ieri și de azi


