În Faleză Nord, un investitor vrea bloc de opt etaje, cu restaurant şi club la înălţime. Clienţii vor avea vedere la mare (document)
În Faleză Nord, un investitor vrea bloc de opt etaje, cu restaurant şi club la înălţime. Clienţii vor avea
							
							 16 Jan, 2017 00:00 
							
														
							
								ZIUA de Constanta
								 
				                   
				                   
				                   
				                
							
							 8333
							
							
								
								
								Marime text
							
							
						
						
						
				                   
				                   
				                
							
							 8333
							
							
								
								
								Marime text
							
							
						Precizăm că din comisie fac parte arhitecţii Mihai Isacov, Ignis Nejla Duvagi, Radu Cornescu, Sorin Mihai Vatamaniuc, dar şi directorul Muzeului de Artă, dr. Doina Păuleanu, şi reprezentantul Direcţiei Judeţene pentru Cultură, arh. Laura Smaranda Tudosie. De asemenea, din aceeaşi comisie mai fac parte arh. Veronica Pribeagu, ing. Cornel Constantin Severin, şeful Serviciului de Urbanism al Primăriei, Mihai Radu Vânturache, precum şi viceprimarul Costin Răsăuţeanu.
Documentaţia depusă a fost întocmită conform art. 32 din Legea 350, actualizată, şi are ca obiect obţinerea avizului de oportunitate pentru întocmirea Planului Urbanistic Zonal, pe baza Certificatului de urbanism nr. 4142 din 13.12.2016, eliberat de Primăria Municipiului Constanţa, şi a Deciziei civile 622/CA/2016, pentru terenul aflat în proprietatea beneficiarului.
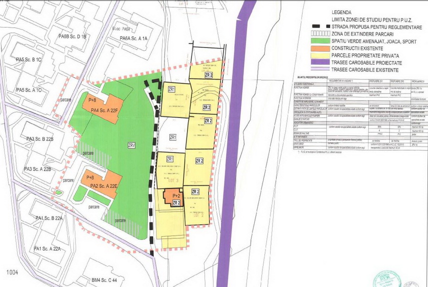
Potrivit documentaţiei care va fi analizată de Comisia tehnică de urbanism a Primăriei Constanţa, terenul pe care se propune amplasarea construcţiei este situat în municipiul Constanţa şi îi aparţine lui Valentin Florin Mihai, conform actelor de proprietate. Tema de proiectare stabilită de comun acord cu beneficiarul propune construirea unui imobil cu regimul de înălţime S+P+7E+8 parţial, funcţiunile propuse fiind următoarele:
- subsol sau demisol - spaţii tehnice şi parcări pentru autoturisme;
- parter - spaţii comerciale şi parcări pentru autoturisme;
- etaj curent (1 - 7) - apartamente de 1, 2 şi 3 camere;
- etaj 8 parţial - restaurant, club cu terasă cu vedere la mare.
Accesul pietonal şi cel auto se vor realiza din carosabilul existent, care se va amenaja şi lărgi corespunzător. Acesta face legătura cu aleile carosabile de la vestul amplasamentului, care ies spre strada Unirii. În prezent, terenul propus pentru amplasarea investiţiei este liber de construcţii şi are următorii indicatori urbanistici aprobaţi: pentru ZR1, Procentul de Ocupare a Terenului (POT) va fi de 60%, Coeficientul de Utilizare a Terenului (CUT) este de 4%, iar regimul de înălţime este de P+7, pentru ZR2, POT este de 50%, CUT este 2%, iar regimul de înălţime este P+2, iar pentru ZRV, spaţii verzi cu acces nelimitat - parcuri, grădini publice şi orăşeneşti, scuaruri şi fâşii plantate publice şi suprafeţe construite de maximum 60 mp pentru adăposturi, grupuri sanitare, administrare şi întreţinere.
Terenul care generează PUZ se află în zona de reglementare ZRV 1a - spaţii verzi cu acces nelimitat - parcuri, grădini publice şi orăşeneşti, scuaruri si fâşii plantate publice, condiţionate de reglementările RLU, aferente Regulamentului Local de Urbanism, aferent Planului Urbanistic General. Iniţiatorul susţine în documentaţie că în acelaşi timp trebuie aplicată Decizia Civilă 622/2CA/2016, care prevede reglementarea lotului 7 pentru construire, printr-un PUZ.
Principala categorie de intervenţie va fi cea legată de reglementarea funcţiunilor pentru o suprafaţă indicată de oportunitate, crearea condiţiilor de amplasare a funcţiunilor principale şi secundare, reglementarea indicatorilor urbanistici şi a regimului de înălţime.
Potrivit Registrului Comerţului, Valentin Florin Mihai, născut pe 11.09.1976, este asociat în cadrul firmei Sea View Residence SRL, aflată în funcţiune, precum şi în Beauty Online SRL, firmă lichidată şi radiată.
În secţiunea „Documente” puteţi consulta proiectul depus de investitorul Valentin Florin Mihai la Comisia tehnică de urbanism şi amenajarea teritoriului.
Urmareste-ne pe Grupul de Whatsapp
								Comentarii
							
							
					Fondul Documentar Dobrogea de ieri și de azi
					

															
														
						
						
						
						
						
						
						
						
						
						
						
						
					