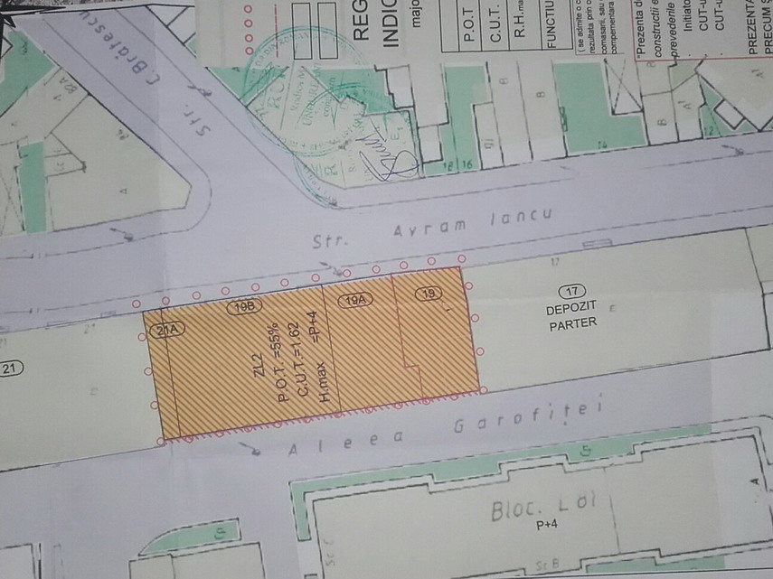
Cezar Mardare ridică un bloc cu două etaje (deocamdată) într-un cartier de case Birouri şi apartamente, lângă bazinul de înot al lui Răzvan Florea (galerie foto)
Cezar Mardare ridică un bloc cu două etaje (deocamdată) într-un cartier de case: Birouri şi apartamente, lângă
25 Mar, 2016 00:00
ZIUA de Constanta
2936
Marime text
2936
Marime text
Urmareste-ne pe Grupul de Whatsapp
Comentarii
Fondul Documentar Dobrogea de ieri și de azi










