Imobil de şapte etaje, pe şoseaua Mangaliei. Evergreen Recycling SRL a solicitat aviz de la municipalitate (document)
Imobil de şapte etaje, pe şoseaua Mangaliei. Evergreen Recycling SRL a solicitat aviz de la municipalitate (document)
11 Feb, 2019 00:00
ZIUA de Constanta
3408
Marime text
3408
Marime text
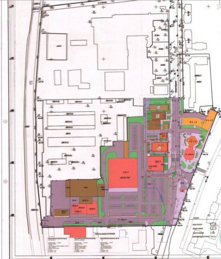
Comisia tehnică de urbanism şi amenajarea teritoriului se va întruni în data de 12.02.2019, având pe ordinea de zi şi solicitarea formulată de Evergreen Recycling SRL privind emiterea avizului pentru teritoriul delimitat de şoseaua Mangaliei, calea ferată, limitele cadastrale ale loturilor identificate cu IE 209310, IR 206497, IE 224885, IE 206884, IE 217237 şi incinta Carmeco.Zona de studiu cuprinsă în prezentul proiect are o suprafaţă de 4,39 ha şi face parte din UTR 9, ZRCB 3. Zonele de reglementare învecinate amplasamentului studiat sunt ZRL4, ZRL5, zona supermarketului Carrefour Ewes şi Align Center. Documentaţia urmăreşte determinarea condiţiilor (din punct de vedere funcţional şi tehnic) în care este posibilă realizarea unei intervenţii urbanistice ce îşi propune să valorifice potenţialul construibil al terenului deţinut de iniţiatori - şoseaua Mangaliei nr. 82, lot 2 şi lot 3.
Terenul studiat este accesibil direct din şoseaua Mangaliei, arteră de circulaţie de categoria II, al cărei profil este, în această zonă, de două fire pe fiecare sens. Funcţiunea predominantă, pe porţiunea analizată, în prezenta documentaţie, este cea comercială, suprafaţa ocupată fiind de 5.804 mp. Pe terenul proprietate a Evergreen Recycling SRL se propune realizarea unei imobil de locuinţe S+P+M+7E/ S+P+8E, cu spaţii de altă destinaţie la parter şi mezanin, propunerea preluând profilul funcţional al imobilului situat spre nord faţă de amplasamentul studiat.
Investitorul propune amenajarea unui acces carosabil cu lăţimea de 3 metri din şoseaua Mangaliei şi asigurarea ieşirii de pe amplasament atât către şos. Mangaliei, direct prin bretea carosabilă de 3 m lăţime, cât şi din aleea carosabilă, paralelă cu strada, în special pentru maşinile de aprovizionare. Suprafaţa studiată pentru realizarea lucrărilor propuse se încadrează în unitatea teritorială de referinţă UTR 9, ponderea funcţiunilor în zonă fund funcţiunea comercială - 5.804 mp, spaţii destinate producţiei - 2.629 mp, locuinţe colective 1.227 mp.
Evergreen Recycling SRL, în datele Registrului Comerţului
Firma a luat fiinţă în anul 2011 şi are sediul social în comuna Mircea Vodă. Capitalul social subscris, de 200 de lei, integral vărsat, este compus din 20 de părţi sociale. Metin Demirtas, născut pe 1.01.1968, în Turcia, este asociat unic şi administrator al firmei, care se ocupă de colectarea deşeurilor nepericuloase. În anul fiscal 2015, firma cu 9 salariaţi a declarat o cifră de afaceri de 1.527.743 de lei şi un profit net de 433.067 de lei. Situaţia financiară pe anul 2016 este următoarea: 8 salariaţi, cifră de afaceri de 1.096.538 de lei şi pierdere brută de 88.238 de lei.
Memoriul proiectului, depus şi la APM Constanţa
Reamintim că, în luna august 2017, Evergreen Recycling SRL a înaintat Agenţiei pentru Protecţia Mediului Constanţa memoriul tehnic de prezentare a proiectului „Plan Urbanistic Zonal pentru terenul delimitat de şoseaua Mangaliei, intrarea Mangaliei, calea ferată şi limitele cadastrale ale loturilor identificate cu IE 209310, IE 206497, IE 224885, IE 206884, IE 217237 şi incinta Carmeco“. În această zonă, investitorul va realiza un bloc cu regim de înălţime P+M+7E, cu destinaţia locuinţe colective cu spaţii comerciale şi de birouri la parter şi la mezanin. Obiectivul pentru care se elaborează prezenta documentaţie este amplasat în municipiul Constanţa, şoseaua Mangaliei nr. 82, lot 2 şi lot 3. Amplasamentul se încadrează în zona de reglementare ZRCB3, iar zona de studiu este cuprinsă între şoseaua Mangaliei şi intrarea Mangaliei şi limitele cadastrale ale loturilor identificate cu IE 209310, IE 206497, IE 224885, IE 206884, IE 217237 şi incinta Carmeco SA. Teritoriul care este studiat/reglementat prin Planul Urbanistic Zonal se află în intravilanul municipiului Constanţa, iar zona în care este inclus face parte din UTR 9 şi ZRCB 3. Suprafaţa zonei studiate este de 4,39 ha, în care locuinţele colective ocupă o suprafaţă de 1.227 mp, spaţiile comerciale ocupă o suprafaţă de 5.804 mp, iar spaţiile plantate ocupă o suprafaţă de 9.588 mp.
Teritoriul studiat în prezenta documentaţie face parte din UTR 8, în care se află zonele ZRL 4, ZRL 5 - subzone destinate locuinţelor colective medii şi înalte şi ZRCB 3 - zonă poli terţiari principali, în care sunt incluse supermarketul Carrefour Expres (fost Billa), incinta Carmeco şi imobilele localizate între supermarket şi calea ferată, preponderent cu destinaţia de reparaţii/producţie. Locuinţele colective aflate în frontul estic al şoselei Mangaliei, respectiv blocul S6 (P+4E), blocul S (P+10E), au fost realizate în anii '80.
Terenul aparţinând SC Evergreen Recycling SRL, în suprafaţă de 1.386 mp, este cuprins între incinta supermarketului Carrefour Expres (fostul Billa) şi şoseaua Mangaliei. Destinaţia terenului, stabilită prin planurile de urbanism şi amenajarea teritoriului aprobate, este aceea de centru comercial P+1E specializat în decoraţiuni interioare şi pardoseli conform HCLM nr. 61/2005. Conform prevederilor PUG-ului municipiului Constanţa, terenul face parte din UTR 8, ZRCB 3 - poli terţiari principali, zonă pentru care este necesară elaborarea unui PUZ.
Odată cu realizarea imobilului de locuinţe colective P+5E şi a centrului comercial Alpin Center, investitorii au identificat oportunitatea valorificării potenţialului urbanistic al terenului deţinut în şoseaua Mangaliei nr. 82, lot 2 şi lot 3, în scopul realizării unei construcţii cu regim de înălţime P+M+7E, cu destinaţia locuinţe colective cu spaţii comerciale şi de birouri la parter şi la mezanin.
Terenul aflat în studiu este localizat în partea central-sudică a localităţii Constanţa, la vest faţă de bulevardul 1 Mai. Terenul este accesibil din şoseaua Mangaliei şi are următoarele vecinătăţi: la nord - incinta Carmeco, la est - şoseaua Mangaliei, bulevardul 1 Mai, la sud - intrarea Mangaliei, la vest - calea ferată. Suprafaţa de teren ce va fi tratată ca spaţiu verde va fi spaţiul rezidual rezultat în urma construcţiei, în concordanţă cu HG 525 (regulamentul general de urbanism). Spaţii plantate aferente obiectivului propus sunt: o suprafaţă de 40 mp plantată cu gazon şi mix de conifere ornamentale medii şi joase; o suprafaţă aferentă locurilor de parcare amenajate pe latura vestică a amplasamentului cu dale înierbate; o suprafaţă de 30 mp - în jardiniere, pe terase şi pe parapetul balcoanelor şi ferestrelor.
În secţiunea „Documente“ puteţi consulta documentaţia depusă la Primăria Constanţa.
Citeşte şi:
Dezbatere publică pentru PUZ-ul iniţiat de Evergreen Recycling. Investitorul va ridica un bloc pe şoseaua Mangaliei
Evergreen Recycling SRL a primit răspuns de la Comisia tehnică de urbanism. Este vizat un bloc situat pe şoseaua Mangaliei (document)
Imobil de şapte etaje, pe şoseaua Mangaliei. Proiectul, iniţiat de Evergreen Recycling, la mâna Primăriei Constanţa (galerie foto+document)
Cum pot influenţa constănţenii proiectul Evergreen Recycling SRL, de pe şoseaua Mangaliei
Pe şoseaua Mangaliei va apărea un bloc de şapte etaje. Cu spaţii comerciale şi birouri la parter. Cine este investitorul (document)
Urmareste-ne pe Grupul de Whatsapp
Comentarii
Fondul Documentar Dobrogea de ieri și de azi


