A fost solicitat acordul de mediu Bloc de zece etaje, ridicat de Sorin şi Anabela Munteanu-Helmuth în cartierul Tomis Plus
A fost solicitat acordul de mediu: Bloc de zece etaje, ridicat de Sorin şi Anabela Munteanu-Helmuth în cartierul
17 Mar, 2016 00:00
ZIUA de Constanta
4341
Marime text
4341
Marime text
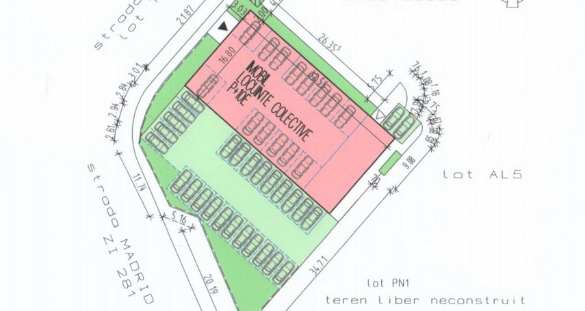
Sorin şi Anabela Munteanu-Helmuth, care se pregătesc să ridice un bloc de zece etaje în cartierul rezidenţial Tomis Plus, au depus la Agenţia pentru Protecţia Mediului Constanţa memoriul de prezentare a proiectului „Construire imobil locuinţe colective P+10 etaje şi împrejmuire teren“, în vederea obţinerii acordului de mediu. Viitorul bloc va fi amplasat pe bulevardul Tomis nr. 425, cartierul rezidenţial Tomis Plus.
Terenul pe care urmează să fie amplasată construcţia propusă se află în intravilanul municipiului Constanţa, fiind proprietate a familiei Munteanu, conform contractului de vânzare nr. 1316/11.12.2015. Vecinătăţile terenului sunt: la sud-vest - strada Madrid, iar la nord-vest, strada Lyon. Suprafaţa terenului este de 1.384 mp.
Viitorul bloc va avea la etajele 1-7 câte două apartamente compuse din două camere şi câte patru apartamente de trei camere. La etajele 8-9 vor fi amplasate câte trei apartamente de două camere şi câte două apartamente de trei camere. De asemenea, la etajul 10 vor fi situate trei apartamente de două camere, două apartamente de trei camere, precum şi două garsoniere. În total, 59 de unităţi locative: două garsoniere, 21 de apartamente de două camere şi 36 de apartamente de trei camere. Finisajele interioare constau în: parchet şi gresie, tencuieli, vopsitorii lavabile, faianţă.
Reamintim că Direcţia de Urbanism a Primăriei Constanţa e emis, pe 22 ianuarie 2016, Certificatul de Urbanism nr. 405 pentru construirea imobilului de locuinţe colective P+10 etaje, la solicitarea lui Sorin şi a Anabelei Munteanu-Helmuth.
Sorin Helmuth-Munteanu este, potrivit Registrului Comerţului, asociat unic al societăţii Tyhe Ams Top SRL. Înfiinţată în anul 2012, firma are sediul în municipiul Constanţa, Prelungirea Tulcei. Capitalul social subscris, de 200 de lei, integral vărsat, este compus din 20 de părţi sociale. Sorin Helmuth-Munteanu este şi administratorul societăţii, care se ocupă de „comerţul cu amănuntul în magazine nespecializate, cu vânzare predominantă de produse alimentare, băuturi şi tutun“.
Citeşte şi Certificatul de urbanism a fost deja semnat În cartierul Tomis Plus va „răsări” un bloc de zece etaje
Urmareste-ne pe Grupul de Whatsapp
Comentarii
Fondul Documentar Dobrogea de ieri și de azi


