Comunicat de presă Primăria Ovidiu a lansat proiectul „Construire imobil P+1E cu destinaţia de creşă cu program prelungit“
Comunicat de presă: Primăria Ovidiu a lansat proiectul „Construire imobil P+1E cu destinaţia de creşă cu
04 Oct, 2019 00:00
ZIUA de Constanta
2155
Marime text
2155
Marime text

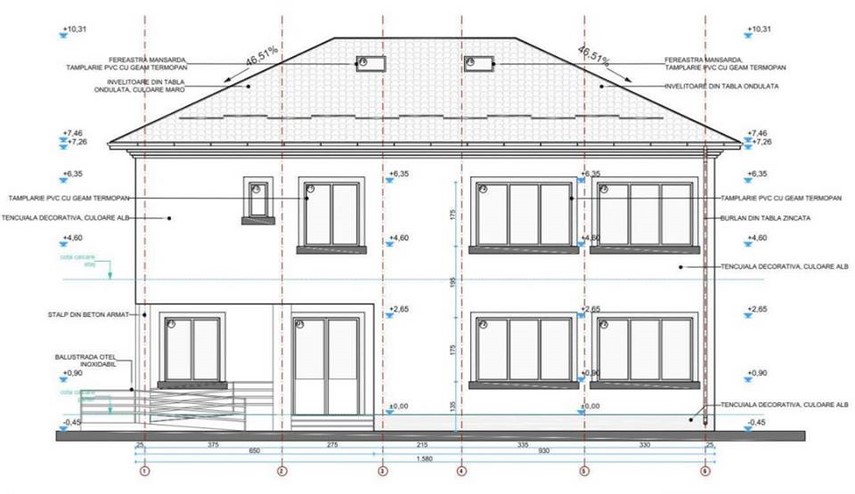
Unitatea Administrativ - Teritorială Oraşul Ovidiu, în calitate de beneficiar, Ministerul Dezvoltării Regionale şi Administraţiei Publice, în calitate de autoritate de management, şi Agenţia pentru Dezvoltare Regională Sud-Est, în calitate de organism intermediar, au semnat în data de 1.07.2019 contractul de finanţare pentru proiectul „Construire imobil P+1E cu destinaţia de creşă cu program prelungit în oraşul Ovidiu“. Obiectivul specific al proiectului constă în creşterea gradului de participare la nivelul educaţiei timpurii şi învăţământului obligatoriu, în special pentru copii cu risc crescut de părăsire timpurie a sistemului.
Proiectul este finanţat în cadrul Programului Operaţional Regional 2014-2020, Axa prioritară 10 - Îmbunătăţirea infrastructurii educaţionale, Prioritatea de Investiţii 10.1 - Investiţiile în educaţie şi formare, inclusiv în formare profesională, pentru dobândirea de competenţe şi învăţare pe tot parcursul vieţii prin dezvoltarea infrastructurilor de educaţie şi formare.
Proiectul va fi implementat în oraşul Ovidiu, pe o perioadă de 40 de luni (respectiv între 23.08.2017 şi 30.11.2020), are o valoare totală de 1.549.760,25 lei, din care 1.107.304,76 lei reprezintă valoarea eligibilă nerambursabilă acordată din Fondul European de Dezvoltare Regională, 169.352,49 lei este valoarea eligibilă nerambursabilă din bugetul naţional, iar 273.103,00 lei este contribuţia beneficiarului.
Obiectivul general al proiectului este reprezentat de creşterea gradului de participare la nivelul educaţiei timpurii (antepreşcolar) şi învăţământului obligatoriu, în special pentru copii cu risc crescut de părăsire timpurie a sistemului şcolar, iar obiectivele specifice sunt: construirea unui imobil P+1E cu destinaţie creşă cu program prelungit, în oraşul Ovidiu, amenajarea/dotarea creşei cu program prelungit pentru un număr de 40 de copii şi asigurarea sustenabilităţii acesteia pe termen lung. Până la finalul perioadei de implementare a proiectului, urmează a se realiza o construcţie P+1E cu destinaţia creşă cu program prelungit (învăţământ antepreşcolar), de care vor beneficia până la 40 de copii cu vârstă până la 3 ani.
Urmareste-ne pe Grupul de Whatsapp
Comentarii
Fondul Documentar Dobrogea de ieri și de azi


