Constănţenii sunt consultaţi de municipalitate cu privire la viitorul magazin Mobexpert
Constănţenii sunt consultaţi de municipalitate cu privire la viitorul magazin Mobexpert
15 Jun, 2017 00:00
ZIUA de Constanta
5592
Marime text
5592
Marime text
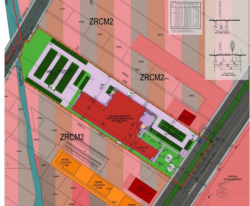
Publicul este invitat să transmită observaţii asupra documentelor disponibile la sediul Primăriei Municipiului Constanţa, în perioada 12.06.2017 - 27.06.2017. Biroul Strategii Urbane va colecta şi va transmite iniţiatorului eventualele observaţii formulate. Răspunsul la observaţiile transmise va fi comunicat în scris de către Primăria Constanţa. Etapele pentru consultarea publicului până la aprobarea planului, conform HCL 322/2016 privind aprobarea regulamentului de informare şi consultare a publicului, sunt: elaborarea propunerilor şi consultarea documentaţiei - 12 - 27 iunie, comunicarea rezultatelor - 8 iulie.
Reamintim că MPM Real Estate Investment SRL a obţinut, pe data de 13 aprilie, de la Primăria Constanţa, Certificatul de urbanism nr. 908 pentru construirea unui imobil S+P+1-2E (comerţ en-gros, depozitare, spaţiu expoziţional, birouri). Actul emis de municipalitate este valabil 24 de luni.
MPM Real Estate Investment, în datele Registrului Comerţului
Firma a fost înfiinţată în anul 2007 şi are sediul social în Bucureşti. Capitalul social subscris, de 222.600 de lei, integral vărsat, este compus din 2.226 de părţi sociale. MPM Real Estate Investment SRL este controlată de Domusmex Limited, cu sediul social în Cipru, Nicosia, cu 30,55% din capitalul social, şi Dan Viorel Sucu, născut pe 25.04.1963, în Bucureşti, cu 69,45% din capitalul social. Administratorul firmei este Viorel Fătu, născut pe 2.04.1955, în Cristur-Şieu, Bistriţa-Năsăud.MPM Real Estate Investment SRL se ocupă de închirierea şi subînchirierea bunurilor imobiliare proprii sau închiriate. În anul 2015, societatea a înregistrat o cifră de afaceri de 1.419.306 lei şi un profit brut de 105.102 lei.
Contactaţi telefonic, reprezentanţii MPM Real Estate Investment SRL au confirmat, pentru cotidianul ZIUA de Constanţa, că vor deschide un magazin Mobexpert în municipiu.
Citeşte şi:
Mobexpert face un magazin la Constanţa. Va avea spaţiu expoziţional şi birouri
Urmareste-ne pe Grupul de Whatsapp
Comentarii
Fondul Documentar Dobrogea de ieri și de azi


