Când are loc dezbaterea publică pentru aprobarea PUZ-ului pentru extinderea magazinului Mobexpert de pe Aurel Vlaicu? (DOCUMENTE)
Când are loc dezbaterea publică pentru aprobarea PUZ-ului pentru extinderea magazinului Mobexpert de pe Aurel
27 Jan, 2023 12:56
ZIUA de Constanta
2369
Marime text
2369
Marime text
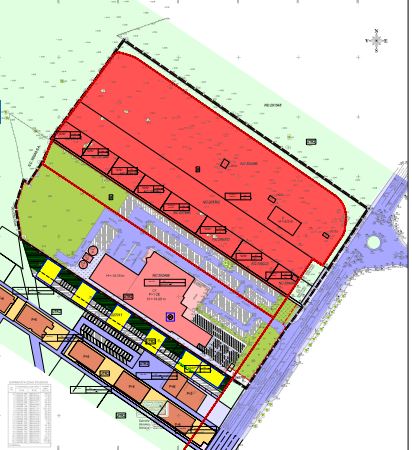
Primăria Constanța a lansat în consultare documentația privind elaborarea PUZ - în vederea reglementării urbanistice a terenului situat în Constanța, identificat cu nr. cad. 252488 pe bulevardul Aurel Vlaicu nr 271.
PUZ-ul este inițiat de MPM Real Estate Investment SRL iar elaborator este ALL Arhitectura SRL.
Publicul este invitat să transmită observații și propuneri asupra documentelor disponibile online pe site-ul Primăriei Municipiului Constanța, în perioada 27.01.2023 - 21.02.2023.
Observațiile vor fi transmise prin e-mail la adresa primarie@primaria-constanta.ro sau prin poștă, la adresa bd.Tomis 51, etaj 1,
cam.121, Serviciul Planificare Urbană și Mediu sau depuse la registratura P.M.C., la Centrul de Informare Cetățeni din incinta
City Park Mall, bd. Al.Lăpușneanu nr.116C.
Ședința de dezbatere publică va avea loc la sediul Primăriei Municipiului Constanța, bd. Tomis 51, în data de 17.02.2023, între orele 10:00 și 11:00. Publicul interesat este invitat să anunțe participarea până la data 10.02.2023 la adresa de e-mail primărie@primaria-constanta.ro
MPM Real Estate Investment SRL vrea realizarea PUZ-ului pentru bd. Aurel Vlaicu nr. 271
Primăria municipiului Constanța a mai eliberat anul acesta un certificat de urbanism pentru societatea MPM Real Estate Investment SRL, pentru construirea unui magazin de mobilă și decorațiuni.
Dan Șucu, asociatul majoritar al societății, este și în juriul de la Imperiul Leilor, difuzat de Pro TV.
MPM Real Estate Investment SRL
Societatea a fost înființată în anul 2007, cu sediul social în București, Sector 2, pe șoseaua Fabrica de Glucoză.
În 2021 firma a avut o cifră de afaceri de 9.575.342 lei și un profit de 4.679.561 lei, cu 15,5% în scădere față de 2020.
Capitalul social este de 340.000 de lei. Asociați în firmă sunt Priceton Limited, societate cu sediul în Cipriu, Nicosia, cu o cotă parte de 20%, Dan Viorel Șucu, cu o cotă parte de 80%. Administratorul firmei este Viorel Fătu.
Activitatea principală a firmei este „Închirierea și subînchirierea bunurilor imobiliare proprii sau închiriate”.
Pe Viorel Fătu îl mai regăsim administrator la Domus Mex SRL, la Rentafi SRL unde este administrator și asociat, la Sprint Investment SRL, unde este administrator și la SVM Administrator SRL, unde este asociat și administrator. Priceton Limited mai este asociat unic la Priceton Mureș SRL.
Pe Dan Viorel Șucu îl regăsim în mai multe societăţi: la B M Logistic Mex SRL, la C S Management SRL, la Clasic Prod Mex SRL, la D Ddistrict Cafe SRL, la Damaro Invest SRL, la Domus Mex SRL, la Eurostil Light SRL, la Linea Mex SRL, la Lion Arena Investment SRL, la M D Retail Sibiu SRL, la Mec Trip SRL, la Mex Productie Distributie Logistica SRL, la Mobexpert Băneasa SRL, la Moldo Mex SRL, la Neo Downtown SRL, la Olimp Imobiliare SRL, la Praga Imobiliare SRL, la Rentafi SRL, la Retail Concept Design SRL, la Retail Investment Management Holding SRL, la SDV Retail SRL, la SM Development RL; la Sprint Investment 2000 SRL, la Torviter SRL şi la Tralomex SRL.
PRECIZĂRI:
Legea 190 din 2018, la articolul 7, menționează că activitatea jurnalistică este exonerată de la unele prevederi ale Regulamentului GDPR, dacă se păstrează un echilibru între libertatea de exprimare și protecția datelor cu caracter personal.
Informațiile din prezentul articol sunt de interes public și sunt obținute din surse publice deschise.
Citește și:
Omul de afaceri Dan Șucu construiește un nou magazin de mobilă la Constanța
Urmareste-ne pe Grupul de Whatsapp
Comentarii
Fondul Documentar Dobrogea de ieri și de azi


