Tensiuni în Faleză Nord Este vizat PUZ-ul unui bloc de șapte etaje!
Tensiuni în Faleză Nord: Este vizat PUZ-ul unui bloc de șapte etaje!
5210
Marime text

-
Asociațiile de proprietari din zonă au cerut suspendarea executării, dar și anularea HCL 533/2019 prin care a fost aprobat PUZ-ul dorit de investitor.
-
Instanța va lua o decizie legată de eventuala suspendare a executării HCL săptămâna viitoare.
-
Terenul în discuție provine din retrocedările fostei administrații locale, declarate ilegale de instanță.
Moment decisiv pentru imobilul de șapte etaje pe care investitorul Mihai Valentin Florin intenționează să îl ridice în zona Faleză Nord, pe un teren ce provine din retrocedările fostei administrații locale, declarate ilegale de instanță.
Judecătorii Tribunalului Constanța vor decide săptămâna viitoare dacă este sau nu cazul să suspende executarea HCL nr. 533/2019. Concret, prin respectiva hotărâre a Consiliului Local Constanța a fost aprobat Planul Urbanistic Zonal privind construcția imobilului cu șapte etaje, la cererea afaceristului Mihai Valentin Florin și în baza unei sentințe rămase definitivă în instanță.
HCL nr. 533/28.11.2019 a fost aprobată cu 14 voturi pentru și 12 abțineri.
Consiliul Local Constanța, pârât
Cazul a ajuns în instanța civilă după ce Asociația de proprietari nr. 450, bl. PA 4, PA 5, PA 6A și PA 6B le-au cerut judecătorilor, la începutul acestui an, să anuleze hotărârea de consiliu local în baza căreia se poate construi imobilul.
Concret, cazul a fost înregistrat pe rolul Secției de contencios administrativ și fiscal a Tribunalului Constanța la data de 27 ianuarie 2020, sub numărul 461/118/2020. Obiectul dosarului îl reprezintă „anulare act administrativ suspendare executare act administrativ HCLM nr. 533/28.11.2019“. Rolul de reclamant le revine Asociațiilor de proprietari nr. 450, în timp ce Consiliul Local al Municipiului Constanța este pârât în cauză. La rândul său, investitorul Mihai Valentin Florin este intervenient.
La termenul ce a avut loc marți, judecătorii au precizat că vor lua o decizie cu privire la eventuala suspendare a executării HCLM 533/2019 în cursul săptămânii viitoare, pe data de 30 iunie. Tot atunci se vor pronunța și asupra excepțiilor invocate în cauză.
Terenul, retrocedat în baza unei dispoziții desființate
Așa cum arătam în edițiile anterioare, terenul pe care Mihai Valentin Florin intenționează să ridice blocul cu șapte etaje provine din retrocedările declarate ilegale de instanța de judecată. Concret, suprafața a fost retrocedată prin Dispoziția nr. 3135/2003 emisă de fostul primar al Constanței, Radu Mazăre, în beneficiul numitului Daniel Ene. Dispoziția respectivă a fost desființată de Curtea Supremă, prin hotărârea în care a dispus condamnările din Dosarul Retrocedărilor din Constanța.
Pe de altă parte, în cadrul ședințelor de consiliu local în care s-a pus în discuție terenul său și investiția pe care dorește să o realizeze, afaceristul Mihai Valentin Florin a precizat că el este a cincea persoană din lanțul celor ce au cumpărat terenul. De asemenea, acesta a precizat că nu a avut cunoștință despre situația juridică a terenului în momentul achiziționării în 2005.
Mai este de precizat faptul că HCL nr. 533/28.11.2019 privește aprobarea Planului Urbanistic Zonal, elaborat în temeiul sentinței civile nr. 63/2016, rămasă definitivă, iar inițiatorul acestuia HCL este chiar afaceristul Mihai Valentin Florin.
Anunț la APM
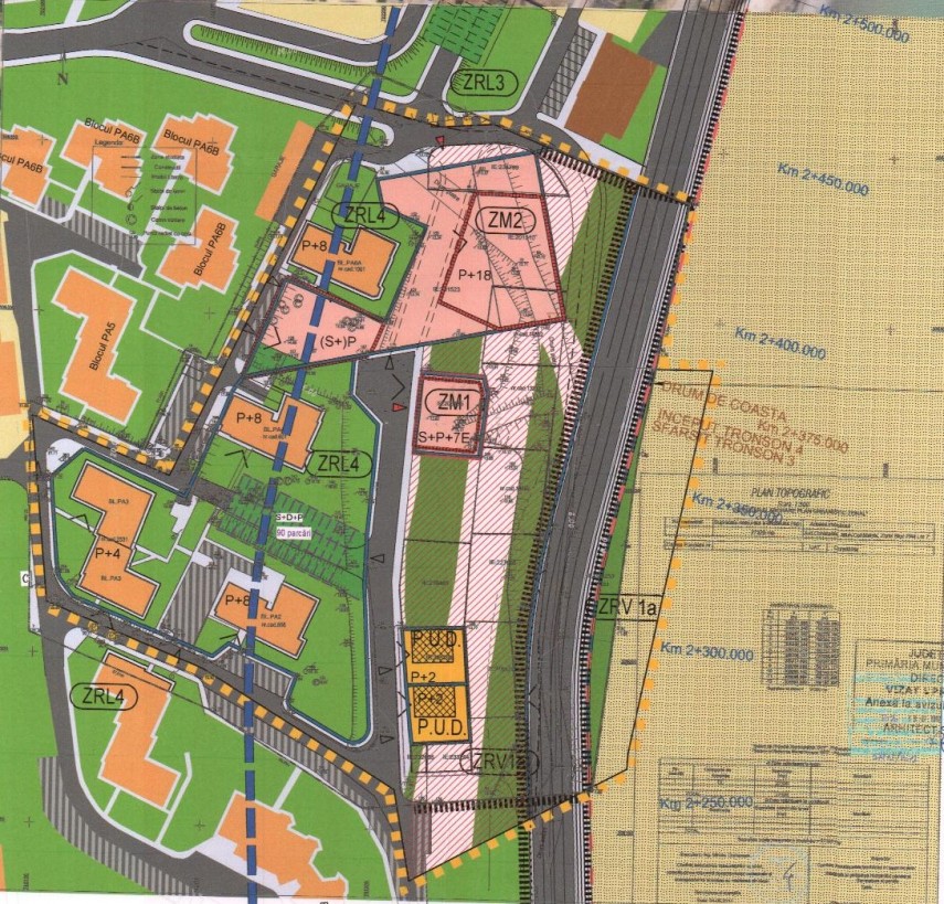
Zona vizată de PUZ este delimitată de străzile Prelungirea Ion Rațiu, plajă și aleile carosabile din fața blocurilor PA6A, PA4, PA3 și PA2.
Locuitorii din zonă, însă, nu sunt de acord cu ridicarea acestui imobil în zonă întrucât susțin că spațiul respectiv este destinat spațiilor verzi.
În luna mai, Agenția pentru Protecția Mediului Constanța a informat publicul interesat legat de depunerea solicitării de emitere a acordului de mediu pentru proiectul: „construire imobil P+7E locuințe colective (ultimul etaj cu supantă + cameră tehnică), amplasare firmă luminoasă, împrejmuire teren, organizare șantier, realizare racorduri și branșamente utilități – cu respectarea regimului de înălțime, amplasat în municipiul Constanța, zona PA2 – PA4, lot 7, județul Constanța“. Titularul proiectului respectiv este Mihai Valentin Florin.
Certificat de urbanism, de la primărie
De altfel, pe 30 ianuarie, fusese emis de către Primăria Constanța Certificatul de Urbanism nr. 518 - „Construire imobil P+7E locuinţe colective amplasare firmă luminoasă împrejmuire gard teren organizare şantier, realizare racorduri şi branşamente utilităţi“.
Terenul este situat în intravilanul municipiului Constanţa, are o suprafaţă de 500 mp, fiind identificat cu nr. cadastral 13259, înscris în cartea funciară a UAT Constanţa sub nr. 203185, şi este proprietate a lui Mihai Valentin Florin, conform extrasului de carte funciară eliberat sub nr. 8063/21.09.2016.
La rândul lor, viitorii vecini ai blocului pe care investitorul dorește să-l ridice în zonă nu au stat nici ei cu mâinile în sân. După petiția transmisă autorităților în vara anului 2019, în care solicitau să nu se aprobe actualizarea PUZ propusă de afacerist, au atacat PUZ-ul în instanță și cer suspendarea și, respectiv, anularea acestuia.
În întreg acest context și în toată această situație tensionată, judecătorii sunt chemați să facă lumină. Așadar, toți cei interesați de demersurile legate de acest proiect așteaptă acum cu nerăbdare decizia instanței legată de eventuala suspendare a executării acestuia.
Citește și:
Bloc pe „spaţii verzi“ în Faleză Nord?:
Povestea terenului aflat iniţial în proprietatea unui inculpat din Dosarul Retrocedărilor
Decebal Făgădău „În mandatul meu, PUZ-ul aprobat astăzi nu va genera niciun efect!”
Urmareste-ne pe Grupul de Whatsapp
Fondul Documentar Dobrogea de ieri și de azi


