Bloc ANL pentru specialişti Aprobarea dezmembrării terenului din curtea Spitalului de Boli Infecţioase, pe masa consilierilor judeţeni
Bloc ANL pentru specialişti: Aprobarea dezmembrării terenului din curtea Spitalului de Boli Infecţioase, pe
25 Oct, 2014 00:00
ZIUA de Constanta
2397
Marime text
2397
Marime text
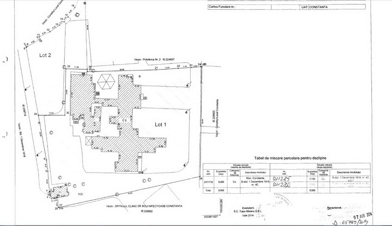
Pe data de 29 octombrie, consilierii judeţeni se vor întruni în şedinţă ordinară. Pe ordinea de zi se va afla şi proiectul de hotărâre privind aprobarea dezmembrării imobilului, proprietate a judeţului Constanţa, situat în municipiul Constanţa, bulevardul 1 decembrie 1018, nr. 4C. Potrivit proiectului de hotărâre, este vorba despre terenul cu număr cadastral 241118, în suprafaţă măsurată de 6.366 mp, cu destinaţia teren aflat în intravilan cu construcţiile C1-C2 în imobilele: nr. 241285 (lot 1) cu suprafaţa de 5.186 mp, nr. 241286 (lot 2) cu suprafaţa de 1.180 mp, conform referatului de admitere (dezmembrare imobil) nr. 65765/2014, emis de Oficiul de Cadastru şi Publicitate Imobiliară Constanţa. Imobilul situat în municipiul Constanţa, bulevardul 1 Decembrie 1918 nr. 4C, în suprafaţă totală de 6.366 mp, este proprietate publică a Judeţului Constanţa, fiind compus din teren încadrat în categoria „curţi construcţii“ şi construcţii cu destinaţia „construcţii administrative şi social culturale“. Ţinând cont de intenţia de realizare a investiţiei „Ansamblu de locuinţe cu regim de înălţime de P+5E şi 48 unităţi locative, destinat tinerilor specialişti din domeniul sănătăţii“, CJC Constanţa a achiziţionat servicii de „întocmire documentaţii cadastrale, topografice şi înscriere în Cartea funciară“ a imobilului de mai sus. Terenul a fost dezmembrat în două loturi, astfel încât să poată fi transmis în folosinţă gratuită Agenţiei Naţionale pentru Locuinţe în vederea edificării ansamblului de locuinţe.
Proiectul face referire la terenul dintre Policlinica 2 şi Spitalul de Boli Infecţioase pe care se există mai multe corpuri de clădiri care, odată, adăposteau mai multe secţii ale Spitalului Municipal, precum Oftalmologia, Chirurgia buco-maxilo-facială ori Endocrinologia. În prezent, clădirile sunt într-o stare avansată de degradare. Programul ANL presupune construcţia de locuinţe pentru tineri cu vârste cuprinse între 18 şi 35 de ani şi sunt destinate închirierii. În ultimii ani, ANL a făcut investiţii în imobile noi în judeţul Constanţa, la Năvodari, Cumpăna ori Costineşti, dar şi în municipiul Constanţa (blocul din Tomis Nord şi cele din Poarta 6).
Urmareste-ne pe Grupul de Whatsapp
Comentarii
Fondul Documentar Dobrogea de ieri și de azi


