Pe un teren cumpărat de la Primăria Constanţa Încă un spaţiu de cazare propus să se înalţe în zona Cazino Mamaia
Pe un teren cumpărat de la Primăria Constanţa: Încă un spaţiu de cazare propus să se înalţe în zona Cazino
							
							 14 Mar, 2016 00:00 
							
														
							
								ZIUA de Constanta
								 
				                    4031
							
							
								
								
								Marime text
				                   
				                   
				                
							
							 4031
							
							
								
								
								Marime text
							
							
						
						
						 4031
							
							
								
								
								Marime text
				                   
				                   
				                
							
							 4031
							
							
								
								
								Marime text
							
							
						 
							 
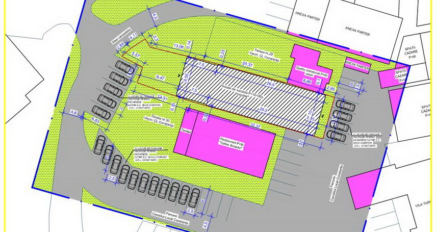
 În urmă cu aproape cinci ani, SC Nova Company SRL înainta Primăriei municipiului Constanţa cererea de cumpărare 73985/2011 pentru un teren de 146 mp din zona Cazinoului Mamaia - terasa 28. Terenul făcea parte din domeniul privat al municipiului şi era adiacent proprietăţii solicitantului, teren deţinut din 2007.
În octombrie 2014, aceeaşi Nova Company obţinea un certificat de urbanism pentru elaborarea unui Plan Urbanistic de Detaliu în vederea extinderii şi supraetajării unui spaţiu comercial P+M în P+1-2E şi schimbării destinaţiei în imobil cu funcţiunea de cazare.
Elaboratorul - Dali-Proiect SRL - a terminat de făcut măsurătorile şi socotelile, astfel că Nova Company aşteaptă acum opinii şi sugestii de la constănţeni. Planul Urbanistic de Detaliu -extindere şi supraetajare spaţiu comercial P+M în P+1E+2E şi schimbare a destinaţiei în imobil cu funcţiunea de cazare - a fost lansat spre dezbatere pe site-ul Primăriei Constanţa de iniţiator, Nova Company SRL. Documentele pot fi consultate la sediul Primăriei Constanţa, camera 212, până la 26 martie.
Extinderea imobilului propusă de Nova Company prevede mărirea pe verticală a construcţiei, cu până la două etaje, dar şi amenajarea unor locuri de parcare, care urmează a fi închiriate de Nova Comapny.
Potrivit datelor de la Registrul Comerţului, SC Nova Company SRL are sediul pe strada Dragoslavelor nr. 27 şi se ocupă de „comerţul cu amănuntul“. Unic asociat şi administrator al firmei este, încă de la înfiinţare, Iana Bajdechi, din Cobadin. Femeia nu mai apare ca fiind implicată în alte afaceri.
Firma a încheiat 2014, ca de altfel toţi anii din 2008 şi până acum, pe pierderi. La o cifră de afaceri de 223.198 de lei, a avut pierderi de 119.102 lei, având numai cinci salariaţi.
Urmareste-ne pe Grupul de Whatsapp
								Comentarii
							
							 Fondul Documentar Dobrogea de ieri și de azi
					Fondul Documentar Dobrogea de ieri și de azi
					

 
															 
														 
										 
										 
										 
										 
										 
										 
										 
										_thumb2.jpg) 
										 
										 
										 
										 
										 
										 
												 
												 
												 
												 
												 
						 
						 
						 
						 
						 
						 
						 
						 
						 
						 
						 
						 
					