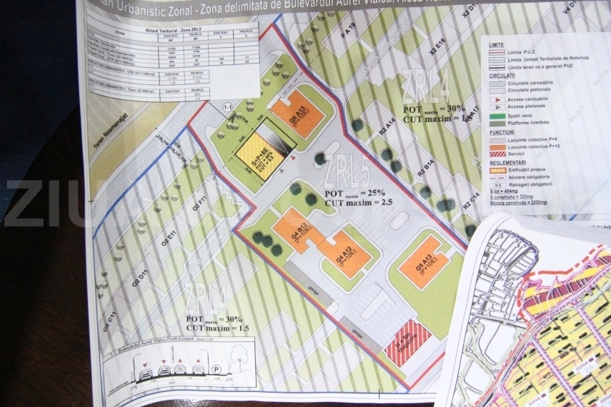
„Se va ajunge în instanţă!“ Constănţenii spun NU blocului de opt etaje pe care patronul de la Ruana îl vrea pe Aurel Vlaicu (galerie foto)
„Se va ajunge în instanţă!“: Constănţenii spun NU blocului de opt etaje pe care patronul de la Ruana îl
22 Oct, 2016 00:00
ZIUA de Constanta
5085
Marime text
5085
Marime text
Urmareste-ne pe Grupul de Whatsapp
Comentarii
Fondul Documentar Dobrogea de ieri și de azi


















