Un hotel de 8 etaje se va ridica în stațiunea Mamaia? Investitorul este Dorinel Turcu, de la Easy Credit 4 All IFN SA
Un hotel de 8 etaje se va ridica în stațiunea Mamaia? Investitorul este Dorinel Turcu, de la Easy Credit 4 All
15 Jan, 2017 13:00
ZIUA de Constanta
6753
Marime text
6753
Marime text
Potrivit documentului depus la Comisia tehnică de urbanism și amenajarea teritoriului se va întruni în data de 23.01.2017, ora 11, la sediul din bd. Tomis nr. 51, accesul în teren se poate face atât pietonal cât și auto, din bulevardul Mamaia.
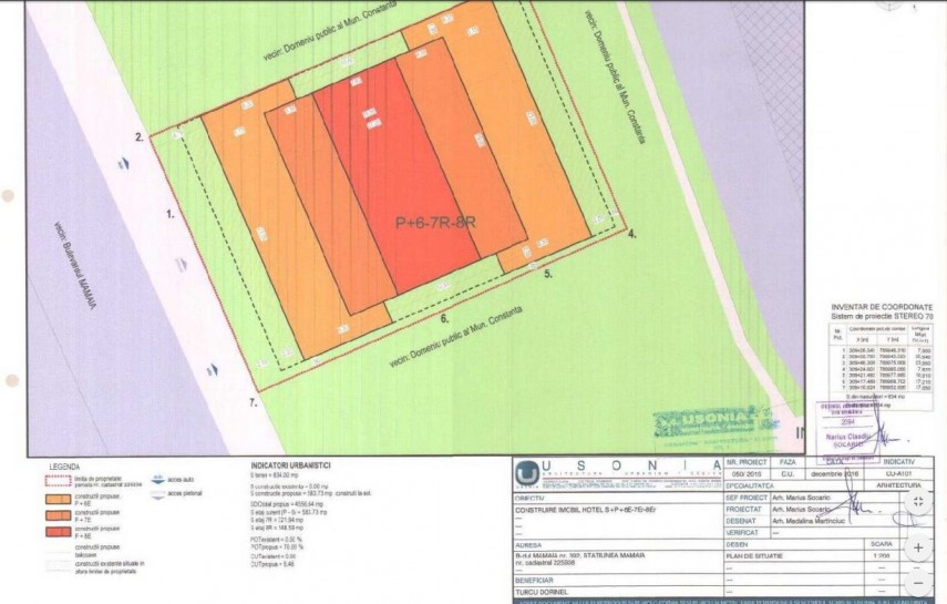
Dimensiunile propuse ale construcției sunt de 27,20 m pe 23 m, având balcoane care ies în consola de la nivelul etajului 1 până la etajul 6, suprafață construită propusă fiinde de 583,73 mp, iar cea desfășurată de 4556,64 mp. Procentul de ocupare propus este de 70%, la un coeficient de utilizare al terenului de 5,48.
Precizăm că din comisia tehnică de urbanism și amenajarea teritoriului fac parte arhitecţii Mihai Isacov, Ignis Nejla Duvagi, Radu Cornescu, Sorin Mihai Vatamaniuc, dar şi directorul Muzeului de Artă, dr. Doina Păuleanu, şi reprezentantul Direcţiei Judeţene pentru Cultură, arh. Laura Smaranda Tudosie. De asemenea, din aceeaşi comisie mai fac parte arh. Veronica Pribeagu, ing. Cornel Constantin Severin, şeful Serviciului de Urbanism al Primăriei, Mihai Radu Vânturache, precum şi viceprimarul Costin Răsăuţeanu.
Despre Dorinel Turcu, de la Registrul Comerțului
Dorinel Turcu figurează în datele Registrului Comerțului ca asociat în mai multe societăți comerciale din Constanța: Comfort Construct SRL, Domarco Security SRL, Domarco SRL, Easy Credit 2 All IFN SA, Easy Credit 4 All IFN SA, Global Recruitment SRL, Orient Ceramic SRL, Orient Construct Décor SRL și Dorinel Turcu Persoană Fizică Autorizată, societăți aflate în funcțiune în prezent. Acesta figurează și în numeroase societăți aflate în lichidare sau radiate, potrivit Registrului Comerțului: Atletic SRL, Club Anca & Domarco SRL, Cosmodor SRL, Dandor SRL, Dialcom SRL, Euro Ceramic SRL, Eurodom SRL, Orient Construct SRL, Tiptil SRL și Venizea Ceramic SRL.
Urmareste-ne pe Grupul de Whatsapp
Comentarii
Fondul Documentar Dobrogea de ieri și de azi


